
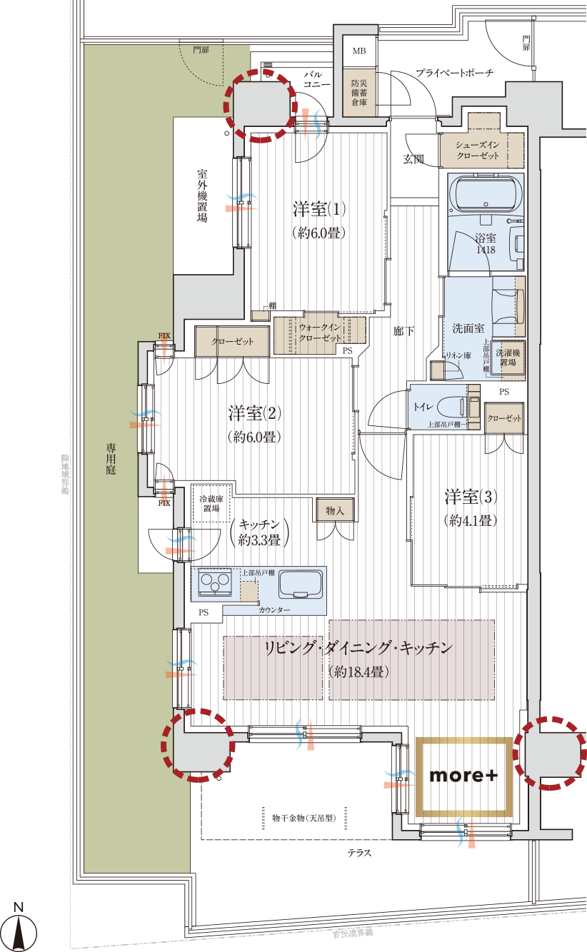
3LDK+WIC+SIC
77.01㎡(約23.29坪)
※防災備蓄倉庫面積 0.70㎡含む
1.82㎡(約0.55坪)
4.86㎡(約1.47坪)
17.59㎡(約5.32坪)
28.05㎡(約8.48坪)

採光
通風
アウトポール設計
床暖房
防災備蓄倉庫
プライベートポーチ
前建てがなく
心地よい光が差し込む配棟計画
住戸の南側は道路、その先に水路と低層住宅が広がる伸びやかなロケーション。目の前に建物がないため、1 階住戸でも遮るもののない明るさと開放感を確保でき、心地よい日常が叶います。
CHECK
季節を楽しみ、
光と風を感じる暮らし
マンションライフに戸建てのような
彩りを添えるテラス付きの1階住戸。
軽やかなフットワークで、ご家族の時間が
よりアクティブに、より豊かになります。
テラス・専用庭付きの
戸建て感

リビング・ダイニングから続くテラスまでがひとつの大きな居住空間に。家庭菜園やガーデニング、DIY など、新しい趣味の幅も広がります。
家族の笑顔が広がる
アクティブライフ

下階への騒音を気にする必要がなく、お子さまも自由に走り回ることができます。水遊びやおうちキャンプなど、テラスの活用で遊びの幅も広がります。
軽やかな日常を叶える
スムーズな動線

忙しい朝や重い荷物のあるときでも、エレベーター待ちのストレスがありません。専用庭の門扉は駐車場と直接つながり、買い物帰りなどもスムーズです。
※WIC=ウォークインクローゼット SIC=シューズインクローゼット N=納戸
※掲載の図面は計画段階のもので、今後変更になる場合がございます。
※掲載の敷地配置図イメージイラストは設計段階の図面を基に描かれたもので実際とは異なる場合があります。
※掲載の現地周辺イメージイラストは、立地を表すためのイメージであり、スケール、距離、色、場所等は実際とは異なります。また、省略されている道路等があります。植栽は特定の季節の状態を想定して描かれたものではありません。